Опис Тумба для ванної з умивальником 60-А-120R Rodeo Wing Мойдодир
Шановні відвідувачі! Просимо вибачення за тимчасові незручності! Деякий текст на цій сторінці перебуває в стадії перекладу.
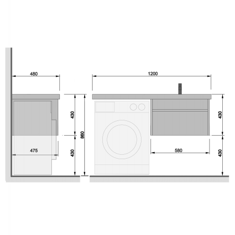
Тумба для ванної з умивальником 60-А-120R Rodeo Wing Мойдодир гарно доповнить інтер'єр ванної кімнати і допоможе раціонально використовувати простір під раковиною і покращує естетичний вигляд в цілому. Тумба комплектується умивальником із штучного камня «Rodeo-120R», виробник «TM Amidicon», Україна і має одну висувну шухляду, яка дозволяє зручно розкласти всілякі гелі, креми, рушники та інші речі, заховати побутову хімію, приховуючи їх від оточуючих та місце для пральної машини. Характерними особливостями меблів є лаконічність і функціональність; бездоганність форм; мінімальне декоративне оформлення; цікаве дизайнерське рішення: відсутність ручок, їх роль виконують фрезеровані на фасаді виїмки; фірмові комплектуючі: направляючі виробництва «Hettich», які забезпечують плавне і м'яке закривання. Wing Мойдодир чудово доповнять інтер'єр вашої ванної кімнати.
Характеристики Тумба для ванної з умивальником 60-А-120R Rodeo Wing Мойдодир
| Тип |
Тумба для ванної |
| Вид |
Тумба з умивальником |
| Форма |
Прямокутна |
| Монтаж |
Підвісний |
| Тип кріплення |
Кріплення до стіни |
| Призначення |
для ванної |
| Розташування раковини |
розташування чаші правостороннє |
| Наявність крила |
розташування крила лівостороннє |
| Ручки |
відсутні, їх функцію виконують фрезеровані на фасадах виїмки |
| Висота |
43 см |
| Ширина |
120 см |
| Глибина |
48 см |
| Матеріал раковини |
штучний камінь «Rodeo-120R», виробник «TM Amidicon», Україна |
| Матеріал корпусу |
вологостійке ламіноване ДСП Kronospan (Польща) товщиною 16 мм |
| Матеріал фасаду |
МДФ Kronospan (Польща) товщиною 16 мм покрите вологостійкою фарбою ультрафіолетового твердіння Iris (Іспанія) |
| Колір |
білий глянець |
| Комплектація |
направляючі виробництва «Hettich» |
| Особливості |
тумба має одну висувну шухляду та місце для пральної машини |
| Країна виробник |
Україна |
| Бренд |
Мойдодыр |
* Увага! Колір і відтінок можуть відрізнятися, в залежності від налаштувань монітора (яскравість, контраст, насиченість), а також освітлення. З метою постійного вдосконалення продукції, згідно умов ринку і законодавства, виробник залишає за собою право в будь-який момент вносити зміни в конструкцію товару без повідомлення не змінюючи його загальних характеристик. Магазин не несе відповідальності за зміни, внесені виробником.
Купити тумбу для ванної з умивальником 60-А-120R Rodeo Wing Мойдодир в Україні, Києві, Дніпрі
В інтернет-магазині ProMebli.ua ми пропонуємо купити тумбу для ванної з умивальником 60-А-120R Rodeo Wing Мойдодир зі складу виробника з доставкою в найкоротші терміни по всій Україні, Київ, Дніпро. Оплата за готівковий і безготівковий розрахунок, в кредит, розстрочку або оплату частинами від ПриватБанк.
Вся колекція меблів для ванної кімнати Wing Мойдодир тут